Woma D12 (2023) · Woonboot · 11,5 m · 5 pers · Fürstenberg/Havel (Marina Röblinsee)

Woma D12 (2023) · Woonboot · 11,5 m · 5 pers · Fürstenberg/Havel

Pro


5 pers.
30 pk
11,5 meter
2023
Boot zonder bemanning

Over Seeliebe

Automatisch vertaalde tekst
Ervaar vrijheid op de "Seeliebe". Jouw woonboot Seeliebe schreeuwt om vrijheid. Het is met veel aandacht voor detail ontworpen, gebouwd en ingericht voor een ontspannen vakantie op zee. Met een lengte van 11,5 m is de Seeliebe gemakkelijk te besturen, gebruiksvriendelijk en uitgerust met de nieuwste technologie. Geniet van de gezellige sfeer aan boord en gun jezelf een ontspannen time-out op de Mecklenburgse Meren. Het eigen zonnepaneel garandeert onafhankelijke, milieuvriendelijke energie - zelfs zonder walstroom. Zelfs op de meest afgelegen plekken van de meren heb je gratis toegang tot de wereld met 5G-WLAN. Met de aan boord aanwezige kajak kun je comfortabel naar de wal peddelen om te winkelen of te wandelen, zonder ingewikkelde aanmeermanoeuvres. De sofa-lounge op het dakterras nodigt uit tot ontspannen met gezellige kussens. Als je liever zachtjes schommelt, kun je de hangmatten gebruiken die zowel aan de voorkant als aan de achterkant van de Seeliebe kunnen worden opgehangen. De woonboot biedt twee comfortabele slaapkamers met elk een comfortabel tweepersoonsbed van 1,60 m - voor onvergetelijke vakantiedromen. 's Ochtends geniet je van het uitzicht door de grote ramen op het prachtige merenlandschap. Daarnaast is er een comfortabele slaapbank van 1,40 m, die plaats biedt aan maximaal twee personen of uitnodigt tot ontspannen. De uitklapbare SMART-TV zorgt voor entertainment. De moderne keuken is uitgerust met een keramische kookplaat, een grote koelkast en voldoende werkruimte. Als je graag barbecuet, kun je bij de havenmeester een geschikte grill voor de woonboot lenen. In de badkamer vind je een wastafel, een toilet en een inloopdouche. Dankzij de krachtige gasverwarming, geïsoleerde waterleidingen, grote watertank en eigen stroomvoorziening kun je de Seeliebe 2 het hele jaar door autonoom gebruiken. Let op: de doorvaarthoogte is 3,92m, met uitgeklapt zonnescherm 5,42m. Vergeet niet het zonnescherm in te klappen voordat je onder bruggen of andere obstakels doorvaart. Vanwege de comfortabele cruisesnelheid van de Seeliebe ligt de focus van je reis meer op het verkennen van de omliggende natuur en minder op het afleggen van grote afstanden. Dit biedt je de prachtige gelegenheid om volop te genieten van de schoonheid van het landschap en de rust van het water. De overdracht en teruggave van de boten is van maandag tot en met zaterdag mogelijk; op zondag is de jachthaven gesloten. Onze thuishaven bevindt zich in de jachthaven Röblinsee in Fürstenberg an der Havel. Houd er rekening mee dat onze woonboten vanwege beperkingen de Müritz niet kunnen bevaren. Een vaarbewijs is vereist en wordt bij aankomst verkregen door een cursus van 3 uur in theorie en praktijk, tenzij je al over een geldig binnenlands vaarbewijs beschikt. Voor gasten met weinig ervaring bieden we een optionele skippertraining (45 min, 50 euro) aan. Plan je aankomst zodanig dat je om 13 uur ter plaatse bent. Minimumaantal personen aan boord: Voor een veilige manoeuvreerbaarheid en het schutten van de woonboten zijn minimaal twee volwassenen vereist. Om veiligheidsredenen moeten de woonboten bij windkracht 2 of hoger in de jachthaven blijven, omdat ze gevoelig zijn voor wind vanwege hun constructie. Bij een windkracht van 3,5 is het uitvaren van de woonboten uitdrukkelijk verboden. Het brandstofverbruik wordt aan het einde van je reis in rekening gebracht en bedraagt 4 euro per liter. Laat je ziel bengelen en beleef een onvergetelijke, ontspannen vakantie op zee. Overtuig jezelf - we kijken uit naar je komst!
Erlebe Freiheit auf der „Seeliebe” Dein Hausboot Seeliebe schreit nach Freiheit. Es wurde mit viel Liebe zum Detail für einen entspannten Urlaub auf See entworfen, gebaut und eingerichtet. Mit einer Länge von 11,5 m ist die Seeliebe ganz einfach zu steuern, anwenderfreundlich bedienbar und mit modernster Technik ausgestattet. Genieße die gemütliche Atmosphäre an Bord und gönn dir eine erholsame Auszeit auf der Mecklenburgischen Seenplatte. Die eigene Solaranlage garantiert dir unabhängige, umweltfreundliche Energie – auch ohne Landstrom. Selbst an den einsamsten Orten der Seenplatte hast Du mit kostenlosem 5G-WLAN Zugang zur Welt. Mit dem an Bord befindlichen Kajak kannst Du bequem ohne großes Anlegemanöver zum Einkaufen oder Flanieren an Land paddeln. Die Sofa-Lounge auf der Dachterrasse lädt mit gemütlichen Kissen zum Entspannen ein. Wenn Du lieber ein sanftes Schaukeln genießt, kannst Du die Hängematten nutzen, die sowohl im vorderen als auch im hinteren Teil der Seeliebe aufgehängt werden können. Das Hausboot bietet dir zwei komfortable Schlafzimmer mit jeweils einem bequemen 1,60 m Doppelbett – für unvergessliche Urlaubsträume. Am Morgen genießt Du den Ausblick durch die großen Fenster auf die wunderschöne Seenlandschaft. Zusätzlich gibt es ein bequemes 1,40 m Schlafsofa, das Platz für bis zu zwei Personen bietet oder zum entspannten Chillen einlädt. Der ausklappbare SMART-TV sorgt dabei für deine Unterhaltung. Die moderne Küche ist mit einem Cerankochfeld, einem großen Kühlschrank und ausreichend Arbeitsfläche ausgestattet. Wenn Du gerne grillst, kannst Du dir beim Hafenmeister einen passenden Grill für das Hausboot ausleihen. Im Badezimmer findest Du ein Waschbecken, ein WC und eine begehbare Dusche. Dank der leistungsstarken gasbetriebenen Heizung, isolierten Wasserleitungen, des großen Wassertanks und der eigenen Stromversorgung kannst Du die Seeliebe 2 das ganze Jahr über autark nutzen. Bitte beachtet: Die Durchfahrtshöhe beträgt 3,92m, mit ausgeklapptem Sonnensegel 5,42m. Denkt daran, das Sonnensegel einzuklappen, bevor Ihr unter Brücken oder anderen Hindernissen hindurchfahrt. Aufgrund der gemütlichen Reisegeschwindigkeit der Seeliebe liegt der Fokus Eurer Reise mehr auf dem Entdecken der umliegenden Natur und weniger auf der Zurücklegung großer Entfernungen. Dies bietet Euch die wunderbare Gelegenheit, die Schönheit der Landschaft und die Ruhe des Wassers in vollen Zügen zu genießen. Die Bootsübergabe und -rückgabe ist von Montag bis Samstag möglich; sonntags bleibt die Marina geschlossen. Unser Heimathafen liegt in der Marina Röblinsee in Fürstenberg an der Havel. Bitte beachte, dass unsere Hausboote aufgrund von Einschränkungen die Müritz nicht befahren können. Ein Charterschein ist erforderlich und wird bei Anreise durch einen 3-stündigen Kurs in Theorie und Praxis erworben, es sei denn, Ihr verfügt über einen gültigen Binnenführerschein. Für Gäste mit wenig Bootserfahrung bieten wir ein optionales Skippertraining (45 min 50 Euro) an. Bitte plant Eure Anreise so, dass Ihr um 13:00 Uhr vor Ort seid. Mindestanzahl der Personen an Bord: Für die sichere Manövrierfähigkeit und das Schleusen der Hausboote sind mindestens zwei erwachsene Personen erforderlich. Aus Sicherheitsgründen bei Windstärken ab 2 oder mehr sollten die Hausboote in der Marina verbleiben, da sie aufgrund ihrer Bauweise empfindlich auf Wind reagieren. Bei einer Windstärke von 3,5 ist Ausfahren der Hausboote ausdrücklich verboten. Der Benzinverbrauch wird am Ende Deiner Reise abgerechnet und beträgt 4 € pro Liter. Lass Deine Seele baumeln und erlebe einen unvergesslichen, entspannten Urlaub auf See. Überzeug Dich selbst – wir freuen uns auf Dich!

Activiteiten

Vrijgezellenfeest voor mannen / Vrijgezellenfeest voor vrouwen

Details

Huurvoorwaarden

Soort verhuur
Boot zonder bemanning
In- en uitchecktijden:
13:00 / 09:00
Borg
1 200 € (Direct door de eigenaar verzorgd)
Annuleringsvoorwaarden
Aangepast
Brandstof
Niet inbegrepen

Boot

Type boot
Woonboot
Model
WOMA - Woma D12
Bouwjaar
2023
Toegestane capaciteit
5
Aantal cabines
2
Aantal toiletten
1
Lengte (m)
11,5
Breedte (m)
4,5
Diepgang (m)
1
Vermogen
30hp (1 Motor)
Brandstofcapaciteit
70 L
Vers water tank
300 L
Huisdieren toegestaan aan boord
Nee
Lokatie
Haven
Andere mogelijke momenten voor vertrek
Fürstenberg/Havel

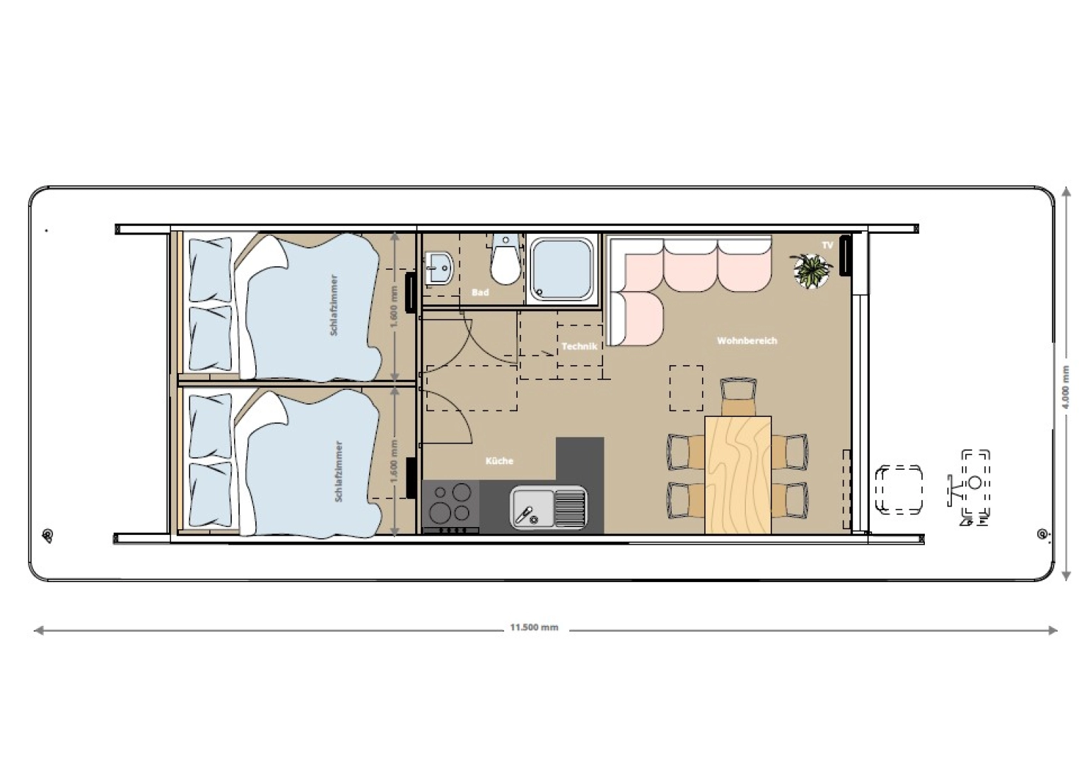
Bootplan

WOMA Woma D12 te huur van particulier of professional in Fürstenberg/Havel

Promoties

Bijkomende kortingen

Samboat Club
-5%
De leden van de SamBoat Club genieten van extra kortingen op een selectie van boten.
Ontdek de SamBoat Club

Aanbiedingen van de eigenaar

04 apr. - 23 mei 2026

-10%

27 jun. - 11 jul. 2026

-10%

25 jul. - 01 aug. 2026

-10%

08 - 22 aug. 2026

-10%

12 - 19 sep. 2026

-10%

26 sep. - 02 jan. 2027

-10%

Een vraag?

Een expert staat tot uw beschikking om u te helpen bij het organiseren van uw cruise
picture-commercial
Fanoula
Cruise adviseur
+31 85 107 1433

Uitrusting

Sanitair

WC elektrisch (1)
Douche
Warm water
Zoet water (300 L)
Badkamer (1)
Black water tank

Recreatie

Zwemtrap
TV

Keuken

Kookplaat
Koelkast
Gasfornuis
Koffiezetapparaat

Navigatie

Buitenboordmotor
Boegschroef
Single steering wheel

Comfort

Wifi en internet
Zonnedek
Verwarming

Opties

eind schoonmaak
Verplicht
Van 01/01/2025 tot 12/07/2027
(Verplicht)
165 € / verhuur
Van 01/01/2026 tot 12/07/2028
(Verplicht)
169 € / verhuur
Parkeren
Verplicht
Van 01/01/2025 tot 12/07/2027
(Verplicht)
5 € / dag
Van 01/01/2026 tot 12/07/2028
(Verplicht)
5 € / dag
Service cost
Verplicht
Van 01/01/2025 tot 12/07/2027
(Verplicht)
55 € / verhuur
Van 01/01/2026 tot 12/07/2028
(Verplicht)
55 € / verhuur
Vergunning
Verplicht
Van 01/01/2025 tot 12/07/2027
(Verplicht)
95 € / verhuur
Van 01/01/2026 tot 12/07/2028
(Verplicht)
95 € / verhuur
Bike
8 € / dag
Beddegoed
27 € / verhuur / persoon
Handdoeken
12 € / verhuur / persoon
Stand up paddle
20 € / dag
Additional extra
Van 01/01/2025 tot 12/07/2027
55 € / verhuur
Van 01/01/2026 tot 12/07/2028
50 € / verhuur
Late check out
Van 01/01/2025 tot 12/07/2027
95 € / verhuur
Van 01/01/2026 tot 12/07/2028
99 € / verhuur
Early Check in
Van 01/01/2025 tot 12/07/2027
95 € / verhuur
Van 01/01/2026 tot 12/07/2028
99 € / verhuur
Skipper training practice
Van 01/01/2025 tot 12/07/2027
75 € / verhuur
Van 01/01/2026 tot 12/07/2028
75 € / verhuur
Mooring fee
Van 01/01/2025 tot 12/07/2027
28 € / dag
Van 01/01/2026 tot 12/07/2028
28 € / dag

Waar is de boot ?

Nauwkeurige locatie:

Over de eigenaar, Pro Partner
Pro Partner
Lid sinds 2024
PRO
Bekijk alle boten van deze pro